PZ573X傘齒輪漿液閥
產品概況
產品型號:PZ573X
公稱通徑:NPS 2"~32"、DN50~800mm
壓力范圍:CL150、PN1.0~16.0MPa
工作溫度:-10℃~120℃
主體材質:碳鋼、不銹鋼
設計標準:API 600、API6D、ASME B16.34、GB/T 12234
結構長度:ASME B16.10、API6D、GB/T 12221
連接標準:ASME B16.5、ASME B16.47、GB/T 9113、JB/T 79、HG/T 20592
壓力試驗:API 598、GB/T 13927、JB/T 9092
壓力-溫度等級:ASME B16.34 、GB/T 12224
PZ573X傘齒輪漿液閥基本信息
百鋼閥門集團生產銷售的PZ573X傘齒輪漿液閥刀型閘閥具有結構簡單緊湊、設計合理、輕型節材,密封可靠、操作輕便靈活、體積小、通道流暢、流阻小、重量輕、易安裝、易拆卸等優點,可在工作壓力1.0MPa-2.5MPa,使用溫度-29-650℃情況下正常工作。
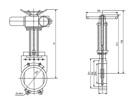
PZ573X傘齒輪漿液閥主要外形及連接尺寸

|
MPa |
DN |
L |
D |
D1 |
H |
N-M |
|
1.0 |
50 |
40 |
125 |
95 |
425 |
4-M16 |
|
65 |
40 |
145 |
110 |
475 |
4-M16 |
|
|
80 |
50 |
160 |
127 |
505 |
8-M16 |
|
|
100 |
50 | 180 |
149 |
580 |
8-M16 |
|
|
125 |
50 |
210 |
174 |
655 |
8-M16 |
|
|
150 |
60 |
240 |
199 |
745 |
8-M20 |
|
|
200 |
60 |
295 |
250 |
890 |
8-M20 |
|
|
250 |
70 |
350 |
310 |
1125 |
12-M20 |
|
|
300 |
70 |
400 | 360 |
1325 |
12-M20 |
|
|
350 |
96 | 460 | 416 |
1480 |
16-M20 |
|
|
400 |
100 | 515 | 466 |
1645 |
16-M24 |
溫馨提示:
本文中所有文字、數據、圖片均只適用于參考。需要查看更多的PZ573X傘齒輪漿液閥性能參數、結構尺寸參數、價格等詳情,或要求高質量印刷樣本,請聯系我們。